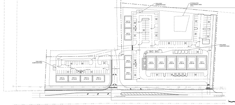
A 14 unit retail, commercial center on 5.75 acres.

37,800 square feet of retail with the ability to divide units.

Drive thru available on one end unit.

Coming in 2025.



The Square Front Elevation



The Square Layout

Home     About Us     Elevations     Site Plan     Floor Plans     Contact Us